Vertico Synchro Комплект фурнитуры, 350-400 L=2,5м, вкладная навеска (20393)
Под заказ
Описание
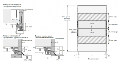
- Комплект содержит все необходимые элементы для 2 синхронных раздвижных деревянных дверей или дверей с алюминиевой рамой
- Комплект содержит ходовой профиль 1200–2500 мм
- Внимание: верхняя дверь действует как противовес нижней двери. Вес дверей должен быть одинаковым
- 2 ходовых профиля с предустановленными ходовыми элементами
- 16 привинчиваемых пластин
- Крепеж
Примечания:
- Декоративные профили для ходовых профилей заказываются отдельно
Характеристики
Отзывы






